|
 |
|
 |
 |
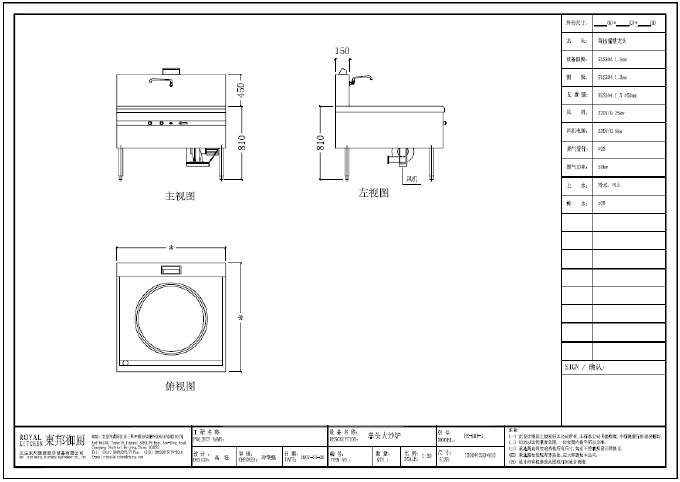
| >> 单头大炒炉 |
 |
| 单头大炒炉 |
|
 |
产品规格和参考资料
| 设备名称〔Name〕 |
单头大炒炉() |
| 品牌〔Brand〕 |
型号〔Mode〕 |
尺寸〔Size〕W x D x H mm |
| ZYZ-K |
PE-LWR-1 |
1200x1220x810 |
| 水〔Water〕 |
电〔Eletricity〕 |
天然气〔Natural Gas〕 |
| 冷水〔C.W.〕 |
去 水〔W.D〕 |
电压〔Voltage〕 |
电量〔Power〕 |
发热量〔Burner Rating〕 |
管径〔Fuel Pipe〕 |
| ¢15mm |
¢38mm |
220V |
0.25kw |
50kw |
¢25mm |
| 说明〔Explain〕 |
|
专为酒店、餐厅、员工食堂等商用厨房工程提设计 全不锈钢外壳并采用组合设计,确保安全和使用方便。 |
| 设计图纸〔Design drawings〕 |
|
| 图纸设计:张智楠 |
图纸审核:高进 |
版权归属:北京东邦御厨厨房设备有限公司 |
*根据客户需要,尺寸会有所调整,以实际设备情况为准。 可根据现场情况或使用功能的特殊要求量身定做。上门设计,安装和调试。咨询电话 010-5869-2075
|
|
|
 |
 |
|
 |
|